
REMONT ELEWACJI KAMIENICY TCZEW

LOKALIZACJA:
TCZEW
POMORSKIE / KOCIEWIE
TYP PROJEKTU:
Remont elewacji
POWIERZCHNIA:
350 m²
KONDYGNACJE:
4
STYLISTYKA PROJEKTU:
Nawiązujący do zabudowy historycznej
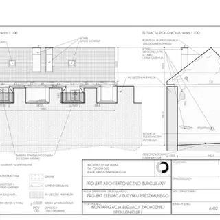
PROJEKT ELEWACJI BUDYNKU ZABYTKOWEGO
Projekt elewacji zabytkowej kamienicy
Przedstawiamy projekt elewacji kamienicy wbudowanej w średniowieczne mury miejskie Tczewa. Lokalizacja w historycznym centrum miasta oraz wpis do rejestru zabytków sprawiły, że projekt wymagał szczególnej uwagi i ścisłej współpracy z Konserwatorem Zabytków.
Historia i kontekst architektoniczny
Budowla mieszkalna osadzona jest na XIV-wiecznym murze miejskim, którego fundamenty tworzą piwnice sklepione kolebkowo z XVII–XVIII w., natomiast bryła pochodzi z przełomu XVIII/XIX w. Kamienica znajduje się na terenie wpisanym do rejestru zabytków jako część układu urbanistycznego Starego Miasta Tczewa, co wymagało zachowania historycznych detali i proporcji.
Remont elewacji w zgodzie z konserwatorem
Projekt elewacji przeszedł pełen proces uzgodnień z Konserwatorem Zabytków i otrzymał pozwolenie na budowę. Dzięki starannemu podejściu uda się odnowić elewację, zachowując historyczny charakter budynku, jednocześnie wprowadzając subtelne nowoczesne rozwiązania, które zwiększają funkcjonalność i trwałość konstrukcji.
PROJEKTOWANIE W OBSZARACH ZABYTKOWYCH
Nasza pracownia architektoniczna specjalizuje się w projektach renowacji zabytkowych budynków i adaptacji historycznych obiektów do współczesnych potrzeb, łącząc precyzyjne wytyczne konserwatorskie z estetyką i funkcjonalnością.













